福莫斯特技術資料
聯系我們
- 聯系人:郭經理
- 傳真:010-69552656
- 電話:400-0346-119
- 電話:010-57491119
- 郵箱:506665119@qq.com
- 地址:北京通州區M5運河1號3號樓403室
福莫斯特FMST-FXR061吸氣式感煙火災探測器
時間:2018-10-29 09:12:45 品牌:
![[!--oldtitle--]](/d/file/baojingshebei/2018-10-29/f9da15baadc1eb7974325aa83bfcb220.jpg)
FMST-FXR061吸氣式感煙火災探測器是 FMST系列產品中的高端產品。FMST-FXR061是一款用于保護各類機柜、配電柜或小型密閉通訊模塊機房等重要環境的專用嵌入式機柜高靈敏度吸氣式感煙探測器,其靈敏度范圍從0.001%到4%obs/m。FMST-FXR061吸氣式感煙火災探測器同樣具備包括極早期報警在內的所有吸氣式煙霧探測技術性能的優越性特點,具有極高性價比的優勢。1U的標準尺寸,使其能直接嵌入在機柜中,為機柜、配電柜或小型密閉通訊模塊機房提供了理想的火災探測解決方案。
二、FMST-FXR061吸氣式感煙火災探測器工作原理FMST-FXR061吸氣式感煙火災探測器的工作原理是通過采樣管網上的采樣孔,不斷地采集空氣樣品,然后對采樣空氣進行過濾并傳送至激光探測腔,通過光散射技術,探測到微量的煙霧,然后根據煙霧濃度和預設的環境參數產生一個適宜的輸出信號,從而發出各級報警。FMST-FXR061探測器采用了-新的第三代FMST探測器經過實踐證明行之有效的探測技術,同時優化了吸氣泵的設計,并將所有元件模塊化組合,裝配在小型外殼內,并帶有簡單明了的顯示與設定裝置。
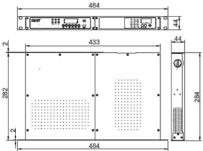
三、FMST-FXR061吸氣式感煙火災探測器尺寸
FMST-FXR061吸氣式感煙火災探測器尺寸圖
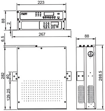
四、FMST-FXR061吸氣式感煙火災探測器與電源安裝方式
FMST-FXR061吸氣式感煙火災探測器與電源橫向裝配圖

FMST-FXR061吸氣式感煙火災探測器與電源橫豎向配圖
五、FMST-FXR061吸氣式感煙火災探測器產品參數| 型號 | FMST-FXR061 |
| 探測器靈敏度 | 0.001 ~4%obs/m |
| 采樣管網 | 6x10m |
| 過濾器 | 可監控和現場更換 |
| (-大)覆蓋面積 | 60㎡ |
| 多根采樣管尋址功能 | 1 |
| 采樣孔的-大數量(CCCF高靈敏度) | 6 |
| 繼電器輸出 | 4 |
| 報警地址點 | 1 |
| 報警級別 | 四級 |
| 機內記憶存儲器(事件記錄的-大數量) | 可達20,000條 |
| 氣流傳感器 | 1 |
| 采樣管模型軟件 | 有 |
| 煙霧與氣流自學習 | 有 |
| LED指示燈 | 6 |
| 編程工具 | FSC |
| 集中控制軟件 | FSC |
| 通訊接口 | USB&CAN |
| 常規輸入 | 遠程控制(復位) |
| IP等級 | IP50 |
| 每條回路上設備/探測器的-大數量 | 256 |
| FMSTlink | 有 |
| 顯示面板 | 4x7字段LED |
| 尺寸(寬X高X深mm) | 223×44×282 |
| 工作電壓 | 24Vdc(18~32Vdc) |
| 功耗 | 6.5W(正常狀態:0.26A,報警狀態:0.29A) |
| 凈重 | 1.9kg |
六、FMST-FXR061空氣采樣應用場所
●具有高速氣流的場所
●點型感煙、感溫火災探測器不適宜的大空間、舞臺上方、建筑高度超過12米或有特殊要求的場所
●低溫場所
●需要進行隱蔽探測的場所
●需要進行火災早期探測的重要場所
●人員不宜進入的場所
新一代FMST-FXR061吸氣式感煙火災探測器由于其顯著提高的報警尋址功能,使得FMST-FXR061可以替代傳統點式探測器,并可充分利用吸氣式感煙火災探測技術優勢實現多個獨立報警分區。







